Available €795,000 - house
Bespoke Estate Agents are delighted to bring 12 Albert Place East to the market. This Victorian home is nestled at the end of a quiet residential cul-de-sac in the heart of Georgian Dublin. Just a short distance from Merrion Square, Trinity College Dublin and Grand Canal Dock, this is a super location with a host of local amenities on the doorstep.
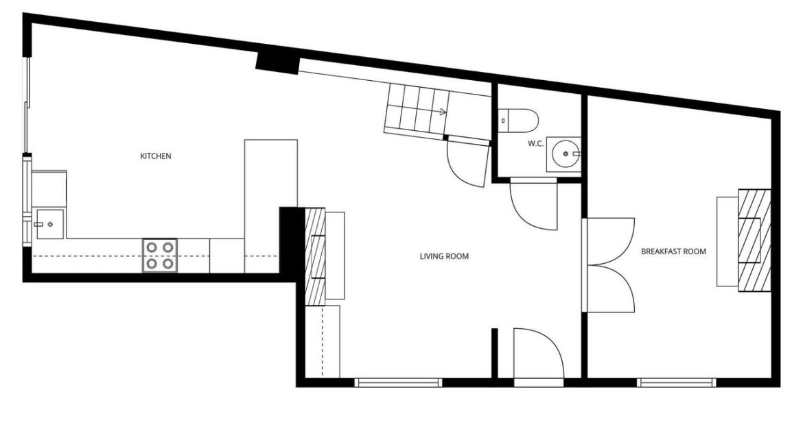
Number 12 is a charming period home, with wrought iron railings, original front door, period style sash windows, hardwood floors throughout and two working fireplaces with wood burning stoves. The character of the home is combined with contemporary comfort, with gas central heating and a stylish extension housing the modern, fully fitted kitchen and leading to a private courtyard garden. Upstairs, there are two bright generous bedrooms with built in storage and a stylish family bathroom. The house is entitled to an on street permit parking.
Albert Place East is located just off Grand Canal Street in Dublin 2, in close proximity to many of Dublins prime business and cultural districts. Grand Canal Dock, the I.F.S.C and Merrion Square are all within 10 minutes walk, with Google, LinkedIn and many of the cities embassies based in the area. Private and public transport links to the area are easily accessible, with LUAS, bus routes and Dart services on the doorstep, including Grand Canal Dock station (700m) just an 8 minute walk.
Viewing is advised
Features
- 0: Double glazed windows
- 1: Turn key condition
- 2: Period features throughout
- 3: Central location in the heart of Dublin 2





















