Let €2,125 - commercial-rent, retail
Brand new retail / commercial development to let coming to Ratoath October 2025
Opportunity to establish your business in the heart of Ratoath, a growing commuter town with a population of over 10,000 in County Meath. Excellent frontage and footfall with a variety of adjoining occupiers and businesses.
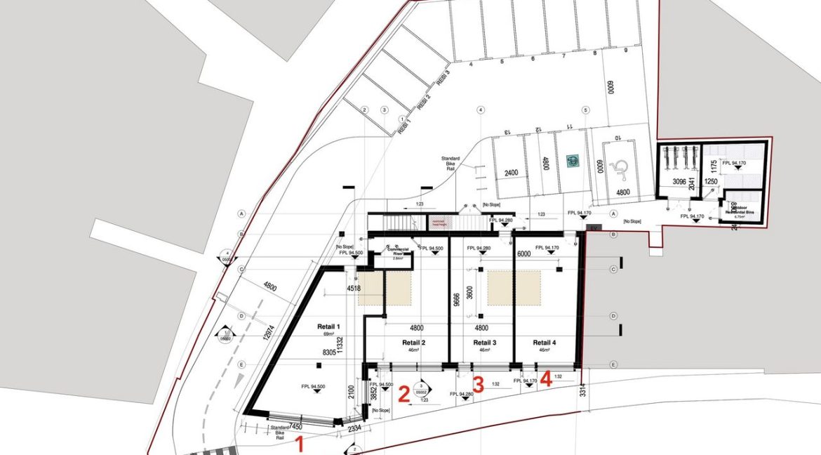
These brand new, purpose built commercial units available to let will be completed to the highest standard and will be available for you to complete to your own specifications. The units start in size from 46m2 (495ft2) with the possibility of combining and or extending into 2 or more. The largest unit is 69m2 (743 ft2).
Retail Unit 1: 69m2 (743ft2) corner unit 40,000 per annum
Retail Unit 2: 47m2 (506ft2) excellent frontage 28,000 per annum
Retail Unit 3: 47m2 (506ft2) add. storage 3m2 28,000 per annum
Retail Unit 4: 43m2 (463ft2) great value 25,500 per annum
Flexible lease terms, so please get in touch to discuss your business and how we can launch from this new location October 2025.
Including separate, secure bike parking, parking and rear access with bin storage.
Further details to be finalised over the coming months.
Site location here https://maps.app.goo.gl/rKghg9a6MGu8ms1s9
Potential planning use’s include:
Class 1:
Use as a shop
Class 2:
Financial Services
Professional Services (other than health or medical)
Any other services (including use as a betting office) where the services are provided principally to visiting members of the public
Class 3
Use as an office other than a use to which class 2 of this Part of this Schedule applies



