15 Charleston Avenue,Dublin 6

15 Charleston Avenue,Dublin 6
Available €795,000 - house
6539095

Bespoke Estate Agents are delighted to bring No. 15 Charleston Avenue to the market. Dating to the early 1900’s, this red brick, mid terrace home is located on a quiet residential cul de sac in one of South Dublins most saught after suburbs; Ranelagh. In need of modernisation, this is a great opportunity to acquire a blank canvas with a home that has huge potential. The period features throughout have been retained, including the hall door, sash windows, original staircase, ceiling cornices and cast iron railings. The house benefits from a sunny south west aspect to the rear, and on street parking.

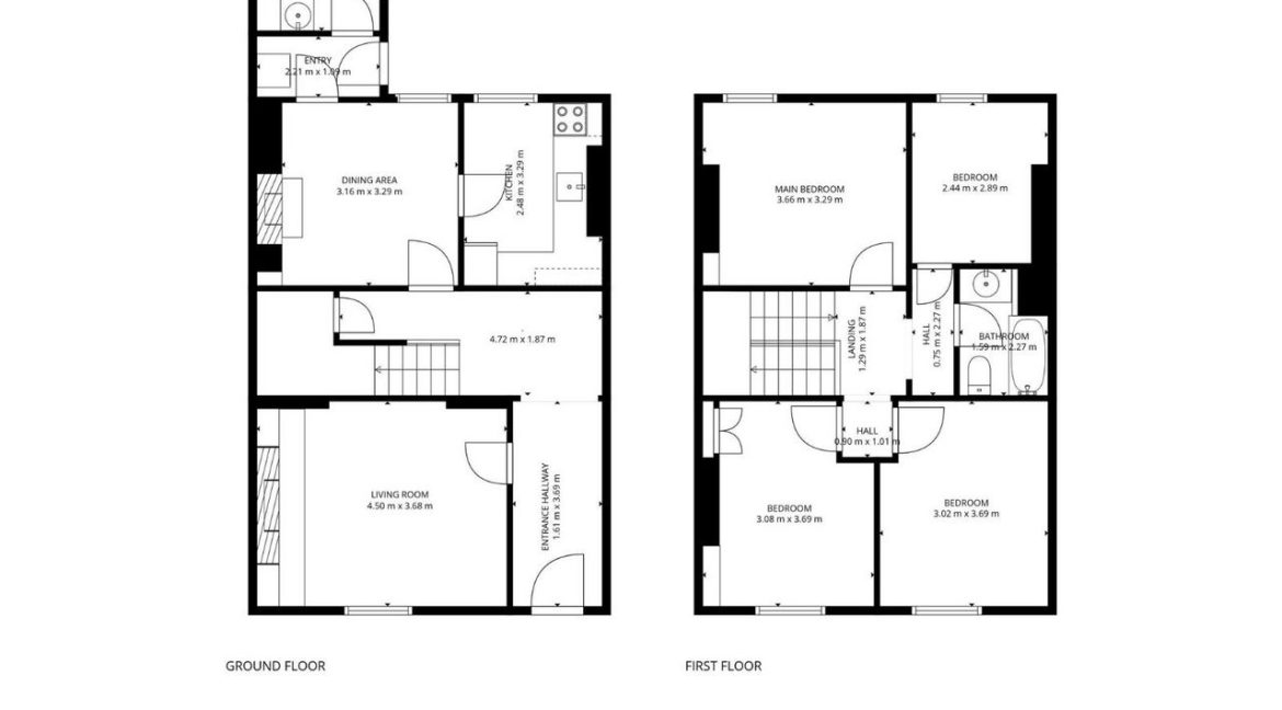
Accommodation throughout this period home is bright and well-proportioned, including an entrance hall, living room, dining room / kitchen and utility area with guest WC. There is ample room to open up this space to the rear STPP. To the rear a partly paved private garden area with a South West facing aspect. Upstairs are four spacious bedrooms and a family bathroom with very good natural light throughout.

Located on Charleston Avenue in Dublin 6, this house benefits from a very central location with immediate access to local amenities, while being positioned on a quiet residential cul de sac. The villages of Ranelagh, Rathmines and Donnybrook are within a short walk, offering a wide selection of cafes, restaurants, pubs, shops and more. The Luas at Ranelagh is just a 9 minute walk (600m) offering direct access to the City Centre, while there are bus links on Charleston Road, Rathmines Road and in Ranelagh Village. Belgrave Square, Ranelagh Gardens, Milltown and Palmerston Parks are close by. Some of Dublins most sought-after schools are in the immediate area including St. Marys College, Gonzaga College, Alexandra College, Muckross Park, Sandford Park, Kildare Place School, Scoil Bhrde and Ranelagh Multi-Denominational, whilst Trinity College Dublin is a short 2km walk away.

Viewing is advised

BERG

Features

  • 0: Period home with huge potential
  • 1: South West facing rear garden
  • 2: Superb location in Ranelagh
  • 3: Quiet residential cul de sac
Property Map

Agent Sales Dept.

Bespoke Estate Agents - Sales Dept.
Know More

Contact

Loading...

Similar Properties

Excellent
Bespoke Estate Agents4.6
Based on 123 reviews
Olwen Kelly
6 days ago
I engaged Bespoke in the sale of a property and found Maria a 'on the button' agent. She followed up in every instance and never did I feel at a loss to what's going on. She negotiated very well on my behalf and if I had half a dozen more houses (which I don't ;) I would be happy to ask her/Bespoke again. Thank you. Olwen
Response from the owner:thanks so much Olwen thats so nice to hear :)
Annemarie Ward
3 months ago
I purchased a property recently from Bespoke EA. Maria Bailey was professional, kind and very accomodating with viewings. She was consistently available to take calls and followed up promptly. She ensured the sale went through smoothly.
Response from the owner:Thank you Annemarie, that means so much to us and Maria :)
Hien Le
4 months ago
I had a great experience with this real estate company. Maria Bailey was very supportive and professional throughout the whole process. She was always helpful, responsive, and made everything smooth and stress-free. Highly recommended!
Response from the owner:thank you so much Hien ! thats great to hear :)
Sonya Keniry
5 months ago
Bespoke have been managing my property for the last 7 years. I get regulare up-dates, all issues managed professionally, efficiently and in a timely manner. Communications are friendly and always with helpful guidance around legal responsibilities and obligations, both for me and my tenants. I also value that my tenants have a great relationship with the Bispoke team aswell. Takes all the pressure away. More than happy to recommend Bispoke, a great team and a great service. 👍
Response from the owner:Thank you Sonya, that means a lot to us ! :)
t.n. nagarjun
5 months ago
Had an amazing service as our estate agents, Susie Davis was our estate agent from 2021 it was great pleasure and we had a really great experience as our agents. Always ready to help us out in case of need.
Response from the owner:thanks so much TN, really appreciate the positive feedback :)
Mario Ursa
5 months ago
Great agency to deal with. Our agent was Susie and Marie both were amazing!
Response from the owner:Thanks a million Mario, much appreciated ! :)
Francesco Lucchese
6 months ago
Susie was the person in charge of renting my property, and she has been absolutely fantastic to deal with. Always kind, professional, and very efficient, she made the whole process smooth and stress-free. Communication was clear and prompt, and I truly appreciated her reliability and proactive attitude. Highly recommended!
Response from the owner:Thank you Francesco, that means so much to us :)
Alex Tomasini
6 months ago
Great real estate agency! From day one, their communication was clear and honest, and everything ran so smoothly. They were always quick to help with anything and made the whole renting process and stay completely stress-free. Really appreciated the friendly and professional service throughout.
Response from the owner:Thanks so much Alex much appreciated!
Great for swing sets.
Louise OToole
6 months ago
Bespoke offer a five star service. I strongly recommend this agency.
Response from the owner:Thank you Louise much appreciated ! :)

 

Bespoke Estate Agents Dublin
Privacy Overview

This website uses cookies so that we can provide you with the best user experience possible. Cookie information is stored in your browser and performs functions such as recognising you when you return to our website and helping our team to understand which sections of the website you find most interesting and useful.