Available Contact agent for details - commercial-sale, investment property
2425 Arran Quay, Dublin 7
For Sale by Private Treaty
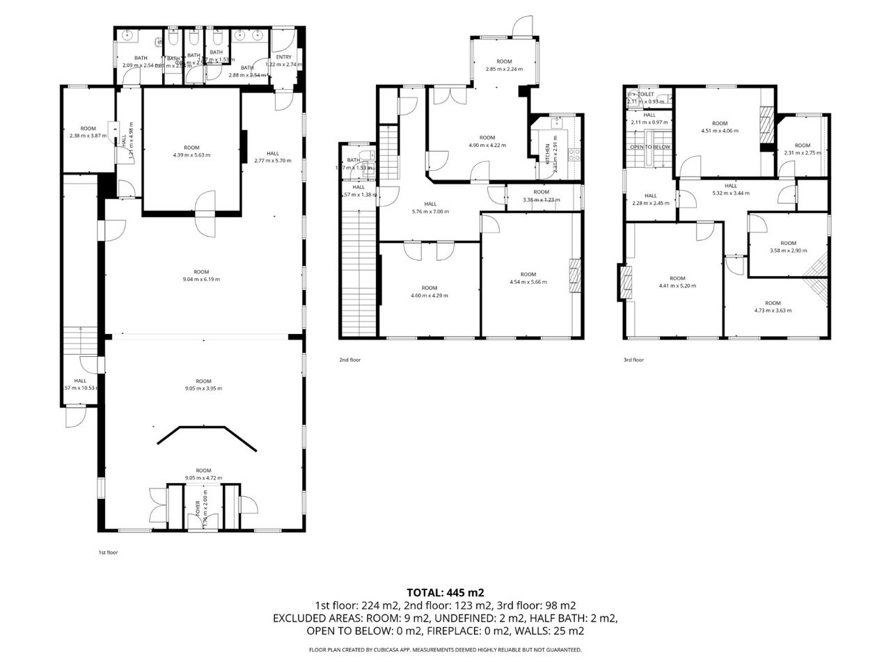
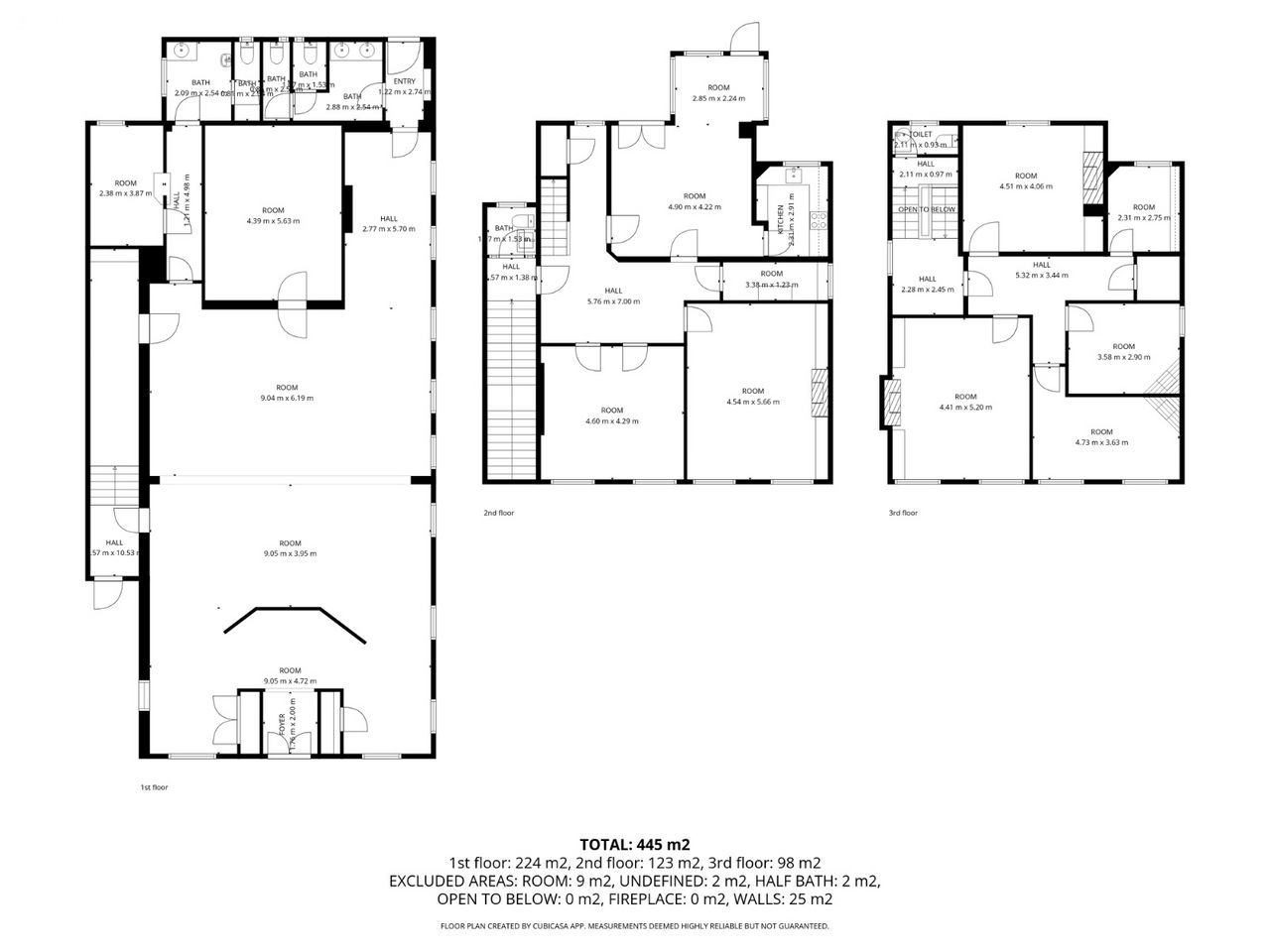
514 sq.m (5,533 sq.ft.) NIA | Freehold | BER Exempt
Landmark early 20th century riverside building occupying a prime south-facing position overlooking the River Liffey.
Extending to approx. 514 sq.m NIA comprising:
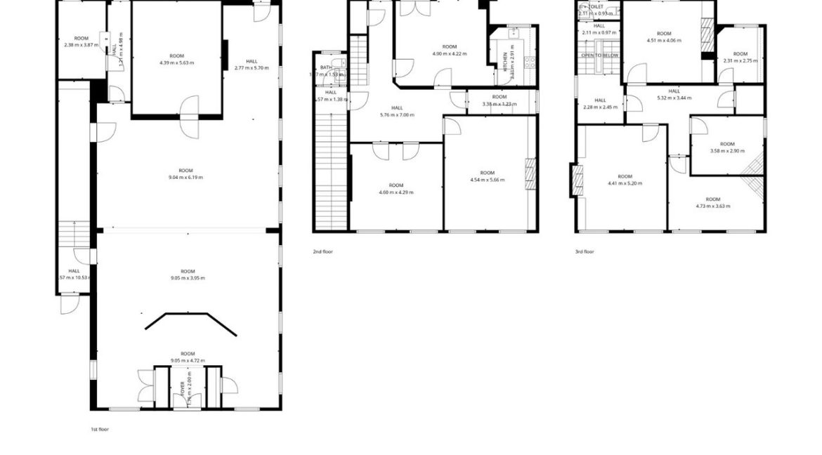
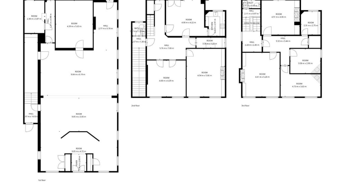
445 sq.m commercial accommodation
Separate 2-bedroom house (69 sq.m)
Secure rear yard/car park
Currently configured as offices with residential element. Former banking hall offers exceptional volume and character, suitable for restaurant, retail, office or mixed-use conversion (subject to planning).
Located within Dublin City Centre Z5 zoning permitting a wide range of commercial and residential uses. Included on the Record of Protected Structures (RPS Ref. 263).
Prime city centre location within 1 minute walk of Smithfield LUAS and close to Four Courts, Capel Street, Temple Bar and Heuston Station.
Strong asset management and long-term redevelopment potential (SPP).
Location
Arran Quay forms part of the historic north quays of Dublin city centre.
The area has benefited from sustained regeneration driven by:
The Four Courts
Smithfield regeneration
Grangegorman campus
Capel Street retail and restaurant district
Temple Bar and the south city core
The Smithfield LUAS (Red Line) stop is approximately 1 minute walk, providing direct access to:
Heuston Station
Connolly Station (DART services)
The Point
The Historic Dublin Fruit & Vegetable Market, currently undergoing major refurbishment, is located nearby.
Description
This landmark masonry building displays classic proportions and architectural detailing, contributing significantly to the character of the quays.
Internally, the property retains strong period features including generous ceiling heights, ornate detailing and regular floorplates suitable for flexible reconfiguration.
Subject to planning permission:
The former banking hall could lend itself to conversion to a high-quality restaurant, retail or mixed-use concept.
Upper floors, previously fitted out in a distinctive commercial style, offer clear potential for residential conversion or high-quality city centre offices.
The accommodation enjoys south-facing views directly across the River Liffey.
To the rear, there is a separate 2-bedroom house and secure yard/car park area.
Zoning & Planning
Zoning: Z5 City Centre (Dublin City Development Plan)
Permits a wide range of commercial, residential and mixed-use development (subject to planning).
Protected Structure:
Included on the Record of Protected Structures (RPS Ref. 263).
The Z5 zoning objective supports vibrancy and mixed-use reconfiguration while respecting historic fabric.
Investment Highlights
Prime riverside city centre location
Landmark architectural presence
Flexible Z5 zoning
Strong asset management potential
Long-term redevelopment or mixed-use opportunity (SPP)
Close to major legal, institutional and commercial occupiers
Potential redevelopment of car park area
Secure parking
Freehold title
BER Exempt
VAT does not apply
Accommodation
Full floor plans and measured survey available upon request.































