Let Agreed €2,597 - apartment
Bespoke Estate Agents are delighted to bring this 2 bedroom, 2 bathroom apartment to the rental market. Located in Georgian Dublin, beside Merrion Square and close to a host of local amenities, this is one of Dublins most sought after neighbourhoods.
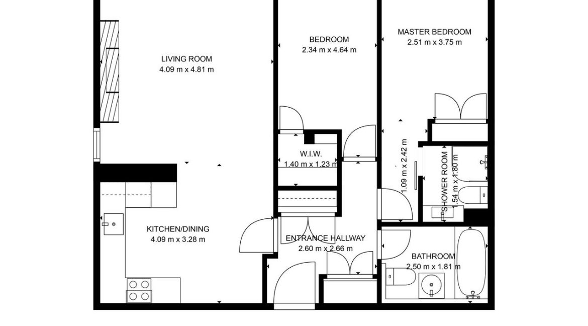
This apartment comprises of a good sized entrance hallway with plenty of storage, an open kitchen and dining room with all mod cons, leading to a light filled living room with ornate fire place and views over South Dublin and the mountains in the distance. Off the hallway is a large main bathroom, two double bedrooms with south facing views, one with en suite and plenty of storage in both.
Located on Mount Street Lower, Slane House is central location close to Merrion Square Park (200m), The National Gallery (800m), Trinity College Dublin (900m) and The Bord Gais Theatre (1km). Local retail at Grafton Street, restaurants, cafes and universities are all within a short walk. Private and public transport links are easily accessible including the DART at Pearse Street and the Green Line Luas. Viewing is advised.













