Agreed €370,000 - apartment
Bespoke Estate Agents are delighted to bring Apartment 9 Earl Court to the market. This is a well appointed one bedroom apartment located on Adelaide Road in the heart of Dublin 2. Located on the 2nd floor, this a quiet unit, with an abundance of natural light given its south facing aspect. This is a highly sought after, secure development with underground gated parking and recent upgrades including new double glazed windows throughout and well maintained communal spaces.
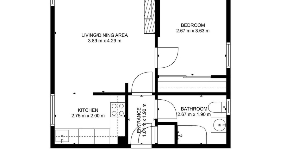
Apartment 9 is a front of development unit, overlooking Adelaide Road and down Harcourt Terrace towards the canal walkway. It comes to the market in turnkey condition. Comprising of an entrance hallway with high quality wood flooring and storage space, a modern fully tiled bathroom, open living/dining room with large south facing windows, opening into a bright kitchen with all the mod cons. The double bedroom is quiet and private, to the rear of the building and comes with a double mirrored sliderobe offering excellent storage. The development benefits from a new fire safety system fitted throughout the block, a new lift and a new security system. All apartments and common areas have been fitted with double glazed windows and fire doors. The property also comes with with secure underground gated parking. Earl Court is an attractive brick fronted building offering peaceful living on the doorstep of central Dublin.
Located on Adelaide Road, the property is within a short walk of most of Dublin City Centres main attractions, including St Stephens Green (700m), Merrion Square (1.5km) and Trinity College Dublin (1.7km) all within a 20 minute walk. There is a host of local amenities including restaurants, bars, cafes and shopping on Camden Street, Baggot Street and the primary shopping district of Grafton Street. Many of Dublins large employers are close by including Amazon and Linkedin. Public transport easily easily accessible with the Luas at Charlemont just a 4 minute walk.
Features
- 0: Central location in the heart of Dublin 2
- 1: Turnkey condition apartment
- 2: Recent upgrades including new windows, fire system, security system
- 3: Underground parking included
- 4: Management Fee of ?2,550 annually














