Sold €475,000 - apartment
Bespoke Estate Agents are delighted to bring to market No. 8 Slane House on 25 Mount Street Lower, Dublin 2. This 3rd floor south facing 2 double bedroom, 2 bathroom apartment is coming to market in turnkey condition. Located in Georgian Dublin, beside Merrion Square and close to a host of local amenities, this is a unique opportunity to acquire a centrally located property in the heart of one of Dublins most sought after neighbourhoods.
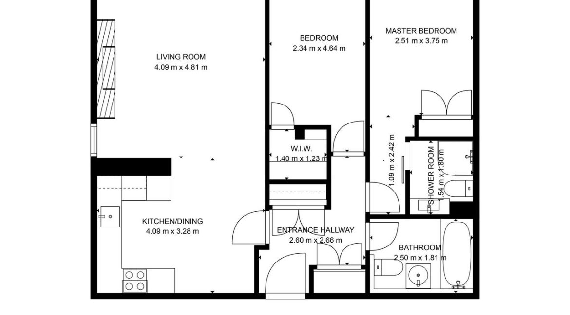
This 74m sq apartment comprises of a good sized entrance hallway with plenty of storage, an open kitchen and dining room with all mod cons, leading to a light filled living room with ornate fire place and views over South Dublin and the mountains in the distance. Off the hallway is a large main bathroom, two double bedrooms with south facing views, one with en suite and plenty of storage in both. Allocated parking to the rear, secure access to the building and a lift are some of the features in the development.
Located on Mount Street Lower, Slane House is in the heart of Dublin 2. Some famous landmarks close by include Merrion Square Park (200m), The National Gallery (800m), Trinity College Dublin (900m) and The Bord Gais Theatre (1km). Local retail at Grafton Street, restaurants, cafes and universities are all within a short walk. Private and public transport links are easily accessible including the DART at Pearse Street and the Green Line Luas. The Grand Canal at the top of the street offers a scenic and historic walkway through one of Dublins most picturesque locations.
Viewing is advised.
Features
- 0: Centrally located in the heart of Georgian Dublin, beside Merrion Square
- 1: South Facing light filled living room and bedrooms
- 2: Intercom access, secure building and allocated parking space to the rear
- 3: Private and well maintained development
- 4: Investment opportunity - previously rented at '¬2,670























