Sale Agreed €440,000 - house
Bespoke Estate Agents are delighted to present 161 Stanaway Road, Kimmage, Dublin 12 to the market.
This charming property offers excellent potential for first-time buyers, families, or investors seeking a home in a well-established and mature location.
The property comprises of:
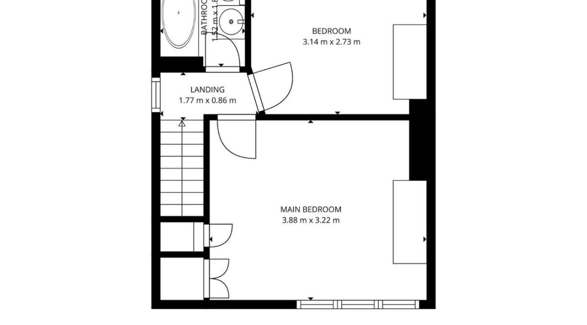
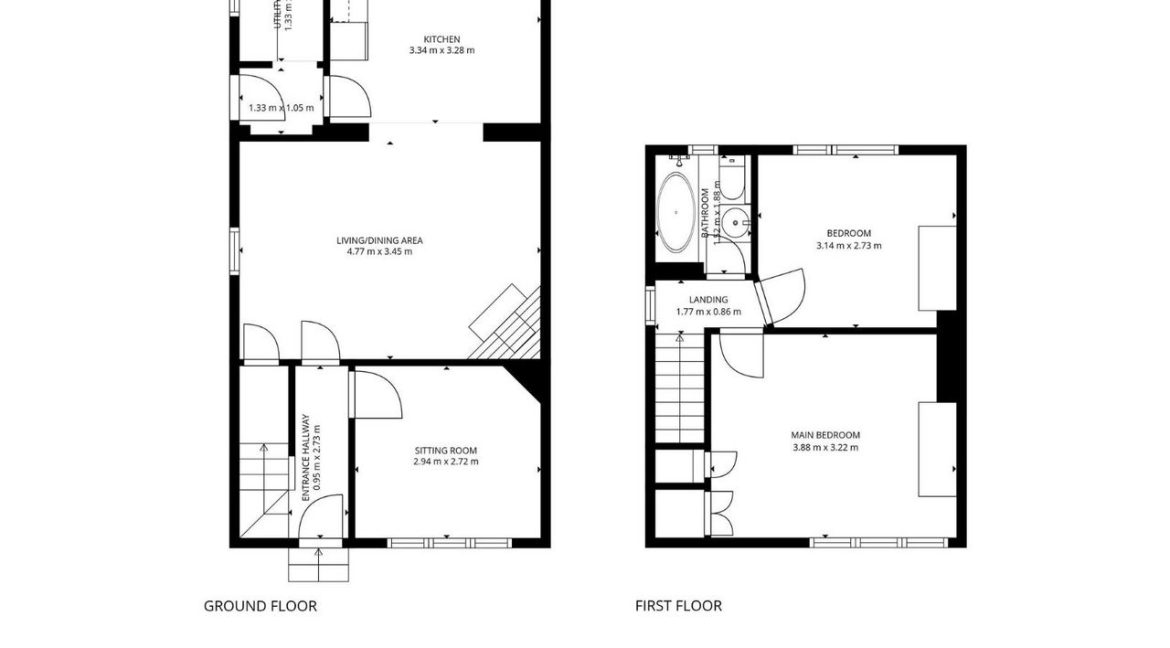
Entrance hall leading to a bright front room, from the hall you enter a spacious reception room and extended kitchen with a separate utility room. Upstairs comprises of two generous double bedrooms front and rear.
There is well-established Primary & Secondary level schools and a variety of supermarkets in the vicinity. The city centre is just 4.3km away and easily accessible by car or bus. The area is served very well via public transport. M50 motorway is just 8 minutes drive away.























