Agreed €905,000 - house
Bespoke Estate Agents are delighted to bring No. 133 Pearse Street to the market. This two storey over basement period home is presented in turn key condition, in an unrivalled central location in Dublin 2. Originally built in the 1820’s, the house was refurbished in recent years while retaining many of its original features including ceiling cornicing, ornate fireplaces, sash windows and timber shutters. The South facing rear garden offers a private and tranquil space in the heart of Dublin city.
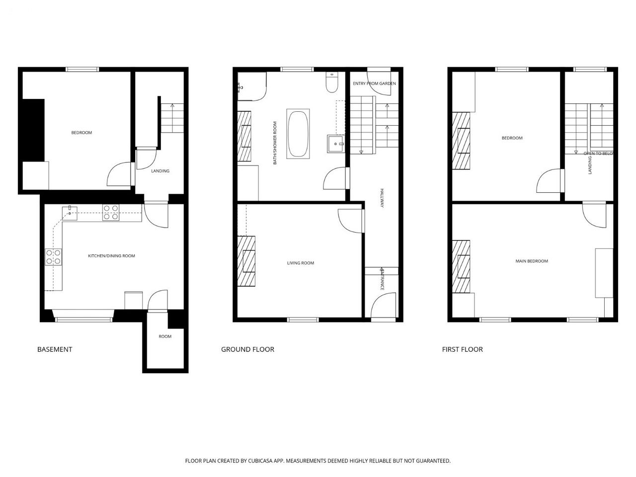
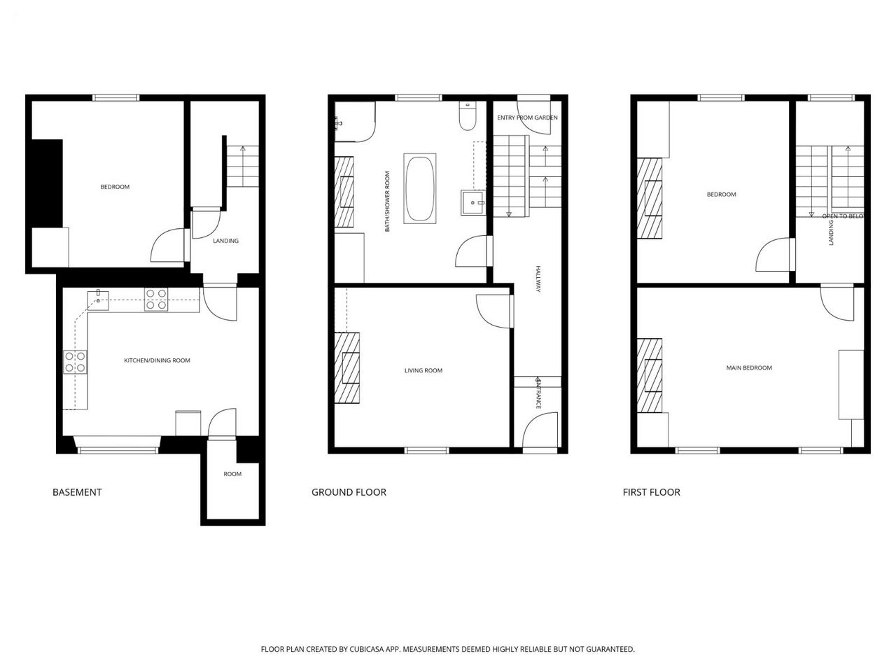
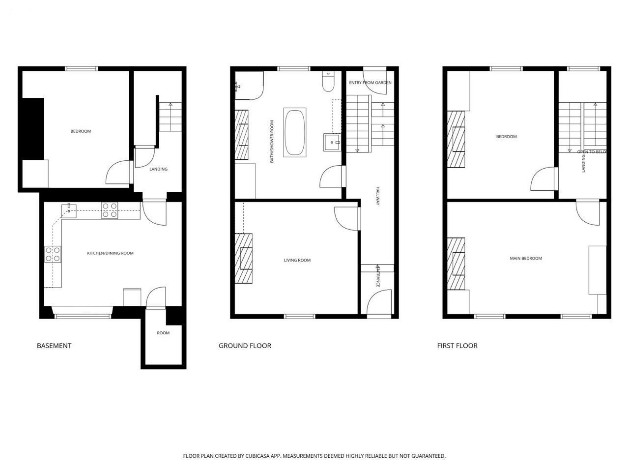
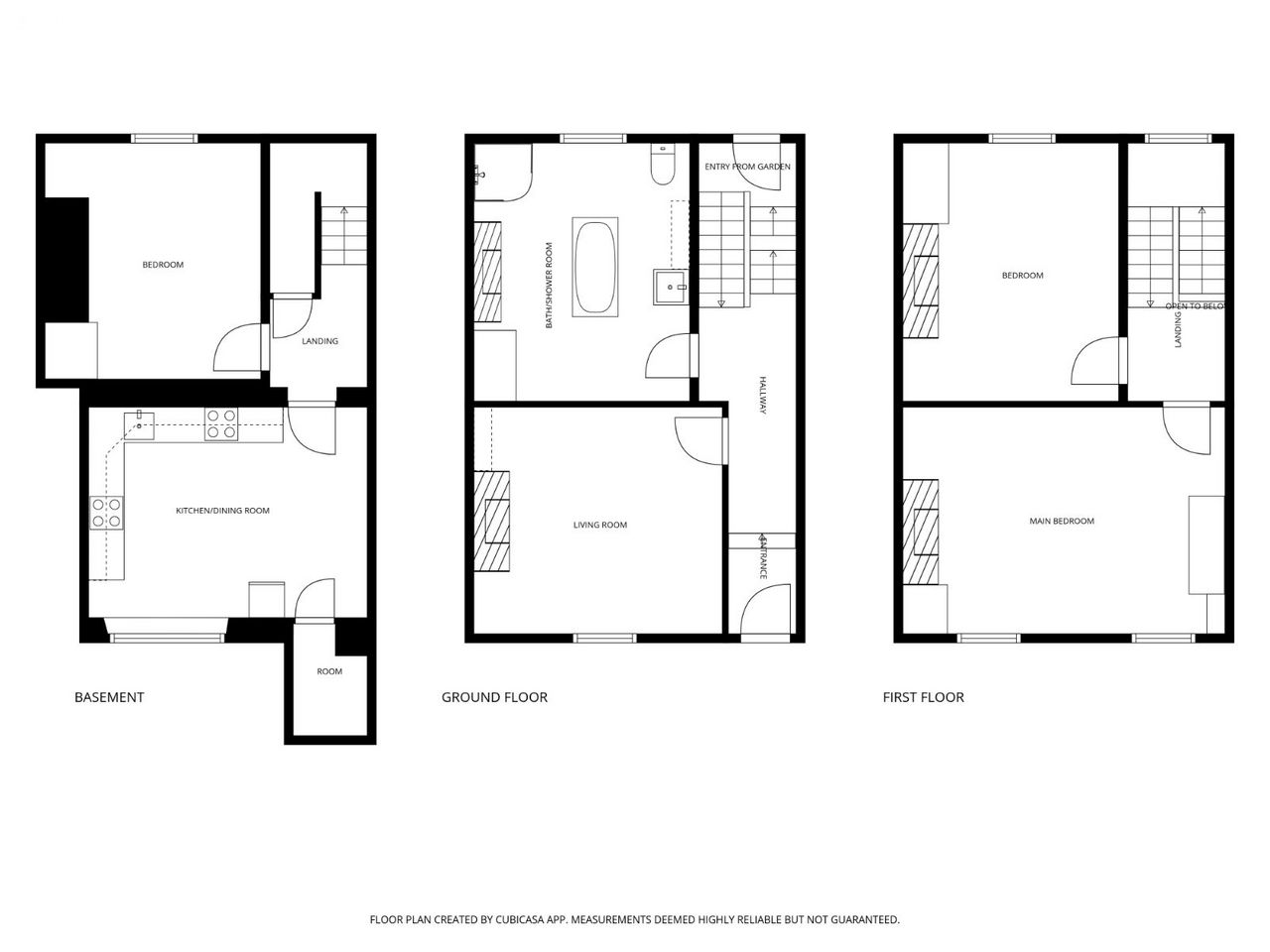
Comprising on the entrance level of a light filled hallway , living room with feature brick fireplace and a large bathroom with a partially stain glassed privacy window and feature free standing bath. Upstairs are two large double bedrooms, both with modern custom built wardrobes and retained period features. On the basement level is a 3rd double bedroom and the kitchen with flagstone flooring and an AGA range cooker. To the rear there is a private, low maintenance, south facing garden with patio and lawn.
Located on Pearse Street in the heart of Dublin 2, this is an unrivalled location for local amenities, within close proximity to Dublins main employment and cultural centres. Grand Canal Dock, home to many of the cities Tech and Financial companies is just a 5 minute walk. Trinity College Dublin (400m), Merrion Square Park (700m) and Grafton Street (1km) are all within a short walk. Public transport links include rail links at Pearse Street and Grand Canal stations as well as the bus corridor on the doorstep of the house. There are a variety of cafes, restaurants and pubs all close by, as well as public parks and the Grand Canal walkway.
Viewing is advised.
Features
- 0: Refurbished period property in turn key condition
- 1: Unrivalled central location
- 2: South facing rear garden
- 3: Gas fired central heating





































