Agreed Contact agent for details - commercial-sale, industrial
Bespoke Estate Agents are delighted to present Unit 8, Crumlin Business Centre, Stannaway Drive, Dublin 12, to the market.
This property offers an excellent opportunity for companies looking to expand their business or looking for additional storage comes with warehouse, office space including 3 parking spaces. Suitable for a variety of uses subject to planning permission. Comes as vacant possession.
The property comprises of a ground floor warehouse unit, office, kitchen, toilet and shower facility in turnkey condition with a loading/unloading bay located to the front of the unit. The first floor comprises of a shared office and storage area. The property is accessed via roller electric shutter door with pedestrian door located to the front. It consists of a concrete frame construction.
Crumlin Business Centre is located approximately 4.5km from the city centre and 5km from M50 with easy access to a major motorway network.
Access
This property is well serviced by a number of bus routes including 18, 83 and 83A.
M50 – easy access to major motorway
Accommodation
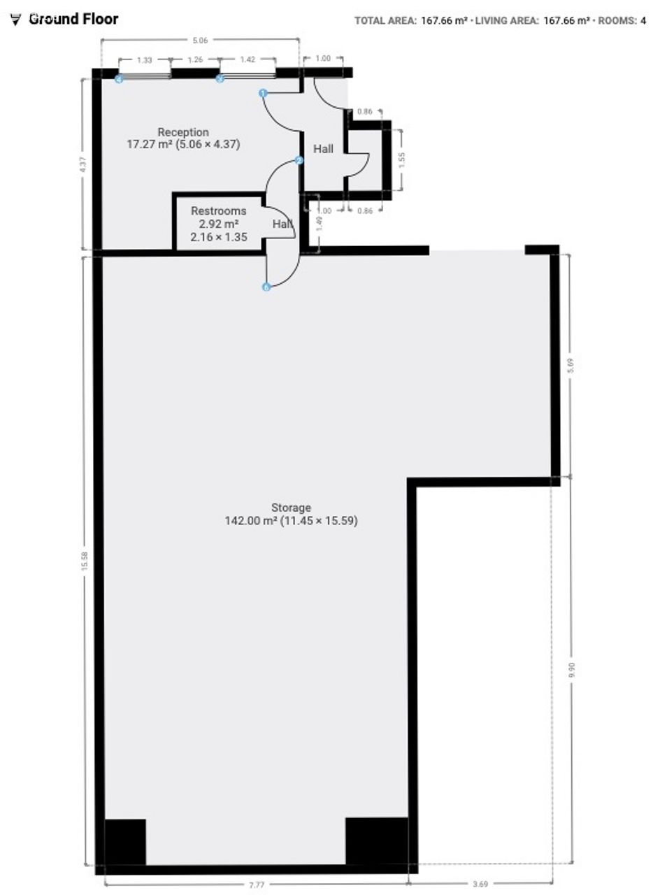
Ground Floor
Hall 1 c.2.91m x 1.99m
Hall 2 c.1.49m x 0.85m
Reception c.5.06m x 4.37m
Restrooms c.1.55m x 0.86m
Shower Room c.2.16m x 1.35m
Storage / Warehouse c.11.45m x 15.59m
First Floor
Shared Office c.4.52m x 5.07m
Storage c.3.60m x 0.95m
Hall c.2.17m x 2.57m
Property Facilities
Parking
Cat 5 Cabling
Phone Lines
Alarm
Toilet & Shower
Kitchen
CCTV
LED Lighting
Fire Alarm
Electric Heating
Emergency Lighting
Suspended Ceilings
Secondary Glazing
Polished Concrete Flooring in Warehouse
3 Phase Power
Neighbouring occupiers that includes a mix of; manufacturing, storage and service providers.
Fantastic opportunity and viewing is highly recommended.
VIEWING BY APPOINTMENT ONLY











