Sold €460,000 - apartment
Bespoke are delighted to present this fabulous modern two bed 1st floor apartment to the market. Glaslyn is a private gated development set off Howth Road, set in amongst mature landscaped grounds. This stylish south facing apartment comprises an entrance hall leading to a bright living dining room with balcony. The fully equipped kitchen with all mod cons. Seperate utility room with plenty of storage and washer dryer. Two spacious double bedrooms with built in wardrobe and master en suite. Fully tiled bathroom with walk in rainfall shower. Complete with designated parking.
Set in the mature area of Clontarf and just off the Howth Road the location is second to none. Glaslyn benefits from a host of local amenities including the popular St Annes Park and Clontarf Promenade with an abundance of cafes and restaurants. Excellent transport links include Clontarf DART station and numerous bus routes meaning the city centre, M50 and Dublin Airport are all easily accessible.
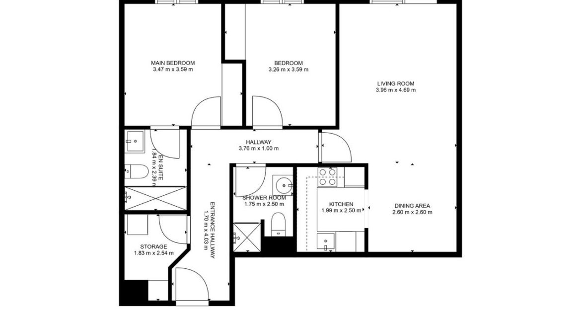
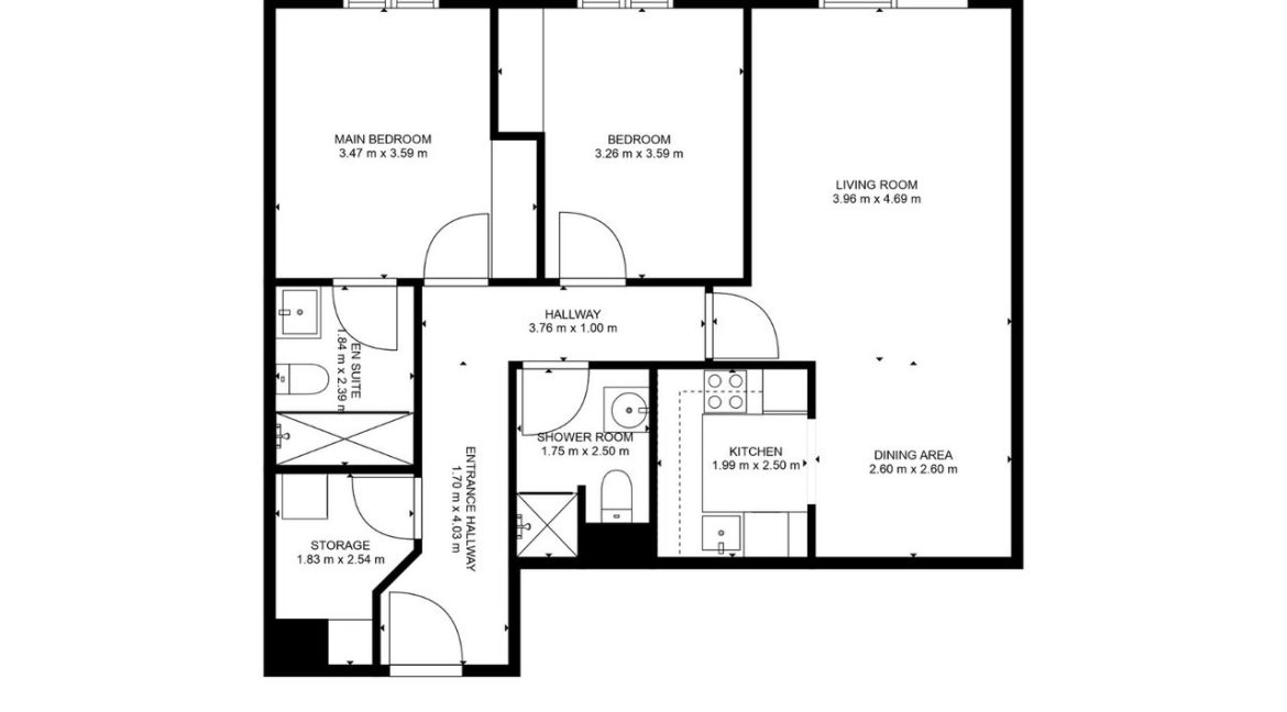
Living room 3.95m x 4.69m with dining area 2.60m x 2.60m
Floor to ceiling window with door to south facing balcony 3.45m x 1.22m
Kitchen 1.99m x 2.50
Semi separate modern kitchen. Large fridge freezer & dishwasher built in
Master bedroom 3.47m x 3.59m
Good sized built in wardrobe unit. South facing window.
En suite 1.84m x 2.39m
Stylish fully tiled with walk in rainfall shower
2nd bedroom 3.26m x 3.59m
Good sized built in wardrobe unit. South facing window.
Bathroom 1.75m x 2.50m
Storage room/hot press 1.83m 2.54m
Good additional storage






















