Sold โฌ280,000 - apartment
Bespoke Estate Agents are delighted to this top floor one bedroom apartment in the heart of Dublin City. This block is a small secure block of just 9 apartments and offers quiet safe living with quick and easy access to a host of Dublins most attractive amenities. Francis St. is within walking distance to St. Stephens Green (1.1 km), Christchurch, Trinity college, Jervis Street, Henry Street and much more. Heuston train station, the Luas, Dublin Bikes and Dublin Bus routes all service the area.
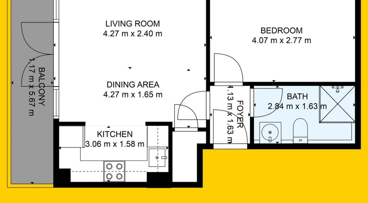
The large balcony offers stunning views over Dublin skyline. The property comprises of a spacious open plan living room flooded with natural light, a fully fitted kitchen, large double bedroom with lots of storage and a sizeable bathroom with skylight.














