Sale Agreed €650,000 - apartment
Bespoke are delighted to present this spectacular three bed apartment overlooking Herbert Park. No 11 The Cedars, Herbert Park Lane is perfectly located in the heart of Ballsbridge alongside the river Dodder. Stylish living with the RDS, Herbert Park and a host of cafes such as Rolys and Avoca only moments away. Excellent transport links include Lansdowne Dart station and numerous bus routes.
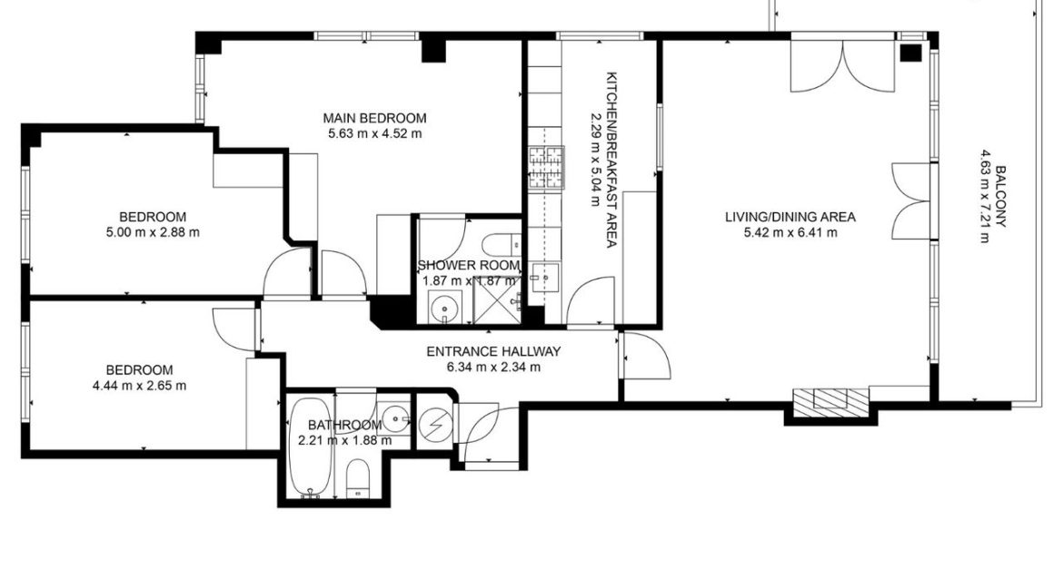
No 11 comprises of an entrance hall leading to a large living room with floor to ceiling windows and balcony overlooking the leafy Herbert Park. The separate galley style kitchen comes complete with all mod cons including gas hob. The spacious master bedroom benefits from built in wardrobes and full en suite. There are two additional bright double bedrooms with built in wardrobes and a fully tiled main bathroom.
Entrance Hall 6.43m X 2.34m
Living Room 5.42m X 6.41m
Floor to ceiling windows & large balcony overlooking Herbert Park
Kitchen 2.29m X 5.04m
Galley style kitchen with all mod cons, including gas hob
Master Bedroom 5.63m X 4.52m
Fitted wardrobes
En Suite 2.21m X 1.88m
Shower, sink & WC
2nd Bedroom 5.00m X 2.88m
Fitted wardrobes
3rd Bedroom 4.44m X 2.65m
Fitted wardrobes
Main bathroom 2.21m X 1.88m
Fully tiled with bath, sink & WC
Features
- 0: Bright & Spacious apartment overlooking Herbert Park
- 1: Secure underground parking space
- 2: Set in the heart of Ballsbridge
- 3: Bright & Spacious apartment overlooking Herbert Park
- 4: Secure underground parking space
- 5: Set in the heart of Ballsbridge












































