Sale Agreed โฌ290,000 - house
Bespoke Estate Agents are delighted to present this bright and modern 3 bed, 2 bath house for sale. Located in Grange View Lawn, a quiet matured housing estate close to local amenities including shops, pubs, restaurants, schools and local parks. This is an ideal location for first time buyers and families, with private and public transport links throughout Dublin.
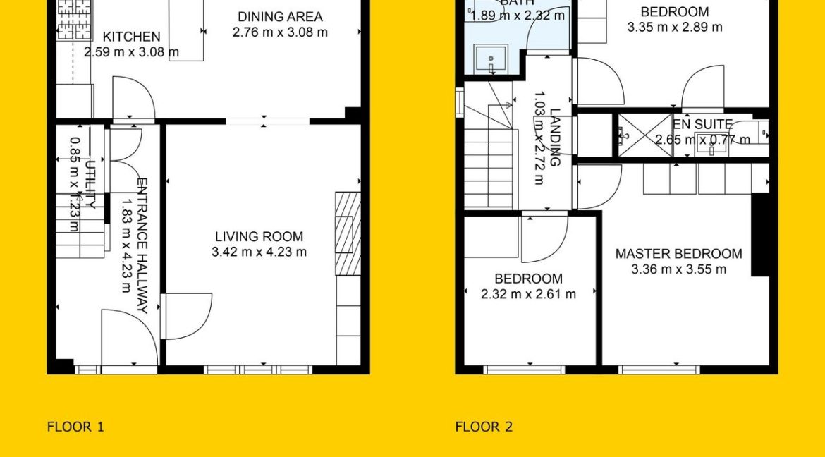
The house itself comprises of a bright hallway with storage for appliances, a light filled South facing sitting room and modern kitchen with dining room overlooking the rear garden. Upstairs are two large double bedrooms and a single box bedroom, a large main bathroom and en suite off the master. There is plenty of built in storage, an attic space and garden shed. The driveway is large enough for two cars and there is plenty of visitor parking in the estate.
Located off Grange View Road beside St. Cuthbert’s Park, this is an ideal location close to Clondalkin Village (7 minute drive), with schools including St Ronan’s National School and Deansrath Community College in very close proximity. Local shops include Londis, Spar and a Dunnes Stores supermarket at the Mill. The Luas Park and Ride at the Red Cow is a 10 minute drive and there are bus routes accessible from St Cuthberts Rd just outside.
Viewing is highly recommended.
Features
- 0: G.F.C Heating
- 1: Double glazed windows throughout
- 2: Super location close to schools and local amenities
- 3: Large front and rear garden with side access
- 4: Located down quiet cul-de-sac























