Agreed €365,000 - house
Bespoke Estate Agents are delighted to bring No. 13 Albert Court East to the market. This period cottage is located in a quiet residential cul-de-sac right in the heart of Dublin 2. The property has been modernised with new windows and upgraded heating, coming to market in turnkey condition.
Situated in a highly sought after location in close proximity to Georgian Dublin, Grand Canal Dock and Ballsbridge. There is on street parking outside the property, and excellent public transport links including the DART (500m to Grand Canal Dock Station) and Dublin Bus Links on Grand Canal Street and Merrion Square North. Some of Dublins largest employers including Google (200m) are within a short walk, with the IFSC is across the Liffey within a 15 minute walk. Government Buildings on Merrion Street are a 10 minute walk.
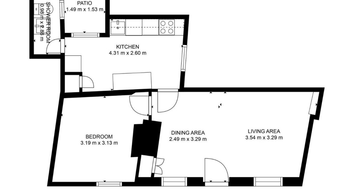
The property itself is well laid out to maximise the use of space. The Hall door entrance opens up to an open living and dining room with built in storage and electric heating. Off the living space is a double bedroom with a clever fold down bed and storage. The fully fitted kitchen has the benefit of an abundance of light with all modern cons, and a small courtyard. A shower-room/w.c. is located off the kitchen.
Living / Dining Area: 6.03m x 6.58m
Bedroom: 3.19m x 3.13m
Kitchen: 4.31m x 2.6m
WC: 0.98m x 2.86m












